Kancelář k pronájmu: Buďte součástí Lazebnické

Kancelář k pronájmu: Buďte součástí Lazebnické
Krásné prostory dřevěné nástavby již uvítaly první nájemníky. Jedno křídlo prozatím zůstává volné a nabízí možnost příjemné a reprezentativní kanceláře s velkorysou terasou. Nastěhujete se do Lazebnické? 

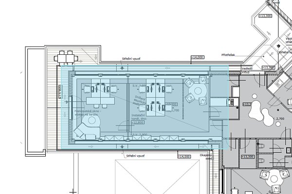
Projekt nástavby překročil výrazný milník. Byl úspěšně zkolaudován a uvítal nájemníky prvních dvou křídel. Poslední prostory zůstávají prozatím volné a čekají na firmu či projekt, který budou moci další roky provázet. Jedná se o obdélníkovou kancelář o výměře 67 m3, která je připravena na rozdělení na dvě části. Ke kanceláři náleží vlastní kuchyňka a menší skladovací prostory. A terasy, které ji obklopují ze tří stran a přidávají dalších 40 m2 prostoru

Prostory jsou připraveny v brzkému nastěhování, ale zároveň ponechávají dostatek prostoru pro doladění a personalizaci interiéru. Celá nástavba byla realizována ve standardu, v němž sami vidíme budoucnost. Udržitrelnost, nadšasový design, jednoduché linie, využití moderních technologií (vše je ovládáno přes Loxone) a zejména vytvoření místa, v němž člověk bude s radostí pracovat a hrdě přijímat návštěvy. Protože v práci se máme cítit dobře. A vidět v ní smysl. 

Akustika je řešena dřevěnými akustickými panely Novatop. Samozřejmostí jsou trojskla, rekuperace a tepelné čerpadlo. Sběr dešťové vody bude doplněn i využitím solární energie. Na udržitelnost a odpovědnost k životnímu prostředí jsme se snažili myslet v každém detailu. A budeme tuto složku i nadále ladit a dopracovávat. Ve spolupráci s architektkou byl také připraven projekt redesignu vstrupních prostor do historické části domu. S městem pak plánujeme zvelebení okolní zeleně. 

Inzerát k nabídce pronájmu (včetně krásného videa): https://www.sreality.cz/detail/pronajem/komercni/kancelare/opava-mesto-lazebnicka/3401274700#fullscreen=true


Photos


Dokumenty

Půdorys nástavby.pdf

fotografie - starý ručně psaný dopis pro Hugo Herrmann

KONTAKTY

Tomáš Němec
Administrativa
nemec@holz.cz
+420 777 478 912

Martina Machonová
Správce, péče o nájemníky
machonova@unicont.cz
+420 608 509 549

Klára Dvořáková
Marketing, kniha a kultura
klara@holz.cz
+420 607 822 558

Vážíme si vašeho soukromí

My a naši digitální partneři používáme na této webové stránce soubory cookies. Některé z nich jsou k fungování stránky nezbytné, ale o těch následujících můžete rozhodnout sami.

Nastavení
Odmítnout vše
Přijmout vše
Nezbytné/funkční

Jedná se o nezbytné cookies, bez kterých by nebylo možné stránky reálně provozovat. Zahrnují např. cookies pro ukládání zvolených nastavení či zapamatování přihlášení.

Vždy aktivní

Analytické

Tyto cookies se používají k měření a analýze návštěvnosti našich webových stránek (množství návštěvníků, zobrazené stránky, průměrná doba prohlížení atd.). Souhlasem nám umožníte získat data o tom, jak naše stránky užíváte.


Uložit nastavení
Přijmout vše